• Предмет: Черчение
  • Автор: arianalovesjb
  • Вопрос задан 3 года назад

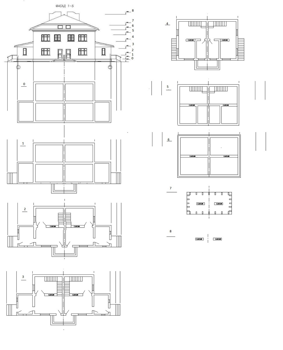
Помогите пожалуйста с планировкой, очень прошу)

Приложения:

Ответы

Ответ дал: ruslanmagdenko
1
Все конечно упрощенно, но все же планировка выполнена. чертежи  - 8 уровней в приложении.
Приложения:

ruslanmagdenko: https://vk.
ruslanmagdenko: com/id60380516?z=photo60380516_417186791%2Fphotos60380516
ruslanmagdenko: в двух комментариях - один адрес на фото в ВК
Вас заинтересует