• Предмет: Математика
  • Автор: Аноним
  • Вопрос задан 9 лет назад

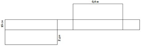
На рисунке изображена развертка объемной фигуры. Вычислите ее объем в дм3, зная указанные на рисунке параметры.СРОЧНЯК! 15 БАЛЛОВ!!

Приложения:

Ответы

Ответ дал: NNNLLL54
0
На рисунке изображена развёртка прямоугольного параллелепипеда. Его объём равен произведению трёх его измерений, которые даны на чертеже. 
          V=15 см·2дм·0,4м=1,5 дм·2 дм·4 дм=12 дм³
Ответ дал: Аноним
0
Спасибо огромное! Сможешь еще одно сделать?
Вас заинтересует