Ответы
Ответ дал:
0
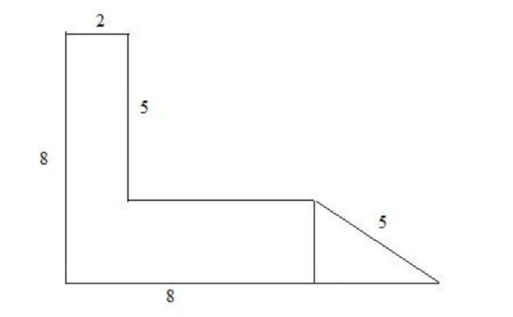
1) Вертикальный прямоугольник :
размеры: ширина = 2, длина = 8
S = 2 * 8 = 16(кв.ед.)
2) Треугольник справа:
вертикальный катет = 8 - 5 = 3
горизонтальный катет = 4 (т.к. это египетский Δ со сторонами:3,4,5)
S = 1/2*3*4 = 6 (кв.ед.)
3) горизонтальный прямоугольник посередине:
размеры: 3 и (8 - 2) = 3 и 6
S = 3*6= 18 (кв.ед.)
4) Sобщ. = 16 + 6 + 18 = 40 (кв.ед.)
Ответ: 40 - общая площадь.
размеры: ширина = 2, длина = 8
S = 2 * 8 = 16(кв.ед.)
2) Треугольник справа:
вертикальный катет = 8 - 5 = 3
горизонтальный катет = 4 (т.к. это египетский Δ со сторонами:3,4,5)
S = 1/2*3*4 = 6 (кв.ед.)
3) горизонтальный прямоугольник посередине:
размеры: 3 и (8 - 2) = 3 и 6
S = 3*6= 18 (кв.ед.)
4) Sобщ. = 16 + 6 + 18 = 40 (кв.ед.)
Ответ: 40 - общая площадь.
Ответ дал:
0
Огромное спасибо! )
Ответ дал:
0
Ок!
Ответ дал:
0
а почему S общая =16+6+16? Там же по сути должно быть 16+6+18
Ответ дал:
0
Извини, подправила и спасибо.
Вас заинтересует
2 года назад
7 лет назад
7 лет назад
10 лет назад
10 лет назад