Ответы
Ответ дал:
0
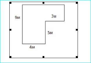
Здесь надо фигуру разделить на 2 фигуры и сложить их площади
Здесь можно двумя способами
Ответ: Площадь 48 кв.м
решение см. на фото
Здесь можно двумя способами
Ответ: Площадь 48 кв.м
решение см. на фото
Приложения:

Ответ дал:
0
Спасибо большое
Ответ дал:
0
Пожалуйста
Вас заинтересует
2 года назад
2 года назад
7 лет назад
7 лет назад
9 лет назад
9 лет назад
10 лет назад