Ответы
Ответ дал:
0
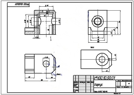
Гидравлический поворотный зажим предназначен для перемещения обрабатываемой на металлорежущих станках детали до упорной базы.
Зажим устанавливают на столе станка или переходной плите и закрепляют в пазу с помощью квадратной головки пальца поз. 5 и гайки поз. 9. Корпус поз. 1 соединен с гидроцилиндром поз. 2.
Гидроцилиндр может быть одностороннего и двустороннего действия. Под действием давления жидкости, поступающей поочередно через резьбовые отверстия крышек поз. 4 и поз. 8, поршень перемещается соответственно вправо или влево. При одностороннем действии верхнее резьбовое отверстие крышки поз. 4 закрывается пробкой. В этом случае под действием давления жидкости, поступающей через отверстие крышки поз. 8, поршень через упорный штырь поз. 6 перемещает обрабатываемую деталь до упорной базы. Обратно поршень возвращается пружиной поз. 7, при этом жидкость, находящаяся в правой полости гидроцилиндра, перетекает через резьбовое отверстие крышки поз. 8 в гидросистему.
Зажим устанавливают на столе станка или переходной плите и закрепляют в пазу с помощью квадратной головки пальца поз. 5 и гайки поз. 9. Корпус поз. 1 соединен с гидроцилиндром поз. 2.
Гидроцилиндр может быть одностороннего и двустороннего действия. Под действием давления жидкости, поступающей поочередно через резьбовые отверстия крышек поз. 4 и поз. 8, поршень перемещается соответственно вправо или влево. При одностороннем действии верхнее резьбовое отверстие крышки поз. 4 закрывается пробкой. В этом случае под действием давления жидкости, поступающей через отверстие крышки поз. 8, поршень через упорный штырь поз. 6 перемещает обрабатываемую деталь до упорной базы. Обратно поршень возвращается пружиной поз. 7, при этом жидкость, находящаяся в правой полости гидроцилиндра, перетекает через резьбовое отверстие крышки поз. 8 в гидросистему.
Приложения:
Вас заинтересует
2 года назад
2 года назад
2 года назад
3 года назад
9 лет назад