Помогите нарисовать деталь в аксонометрической проекции, только сделать разрез, типо, представить деталь как 4 части и убрать одну из них. Затем сделать три вида с фронтальным разрезом. Помогите, пожалуйста.
Приложения:
star1975:
Ребят, пожалуйста, помогите, мне не так просто даётся черчение, да и скоро оно закончится.
Ответы
Ответ дал:
2
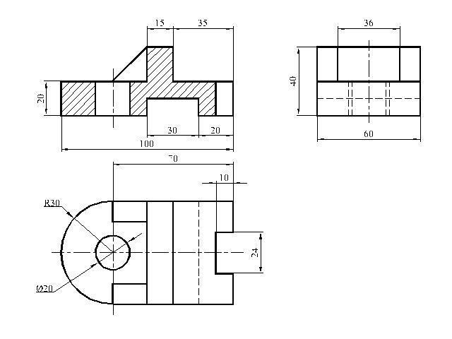
Проверьте размеры, так как на Вашем чертеже плохо видно.
Вашу деталь невозможно разделить на 4 равные части, чтобы вырезать 1/4.
На одном чертеже вырезала кусочек, на другом 1/2.
Вашу деталь невозможно разделить на 4 равные части, чтобы вырезать 1/4.
На одном чертеже вырезала кусочек, на другом 1/2.
Приложения:
спасибо большое
Удачи!
Вас заинтересует
2 года назад
2 года назад
2 года назад
3 года назад
3 года назад
9 лет назад