помогите надо чертить вид с лево
Приложения:
Букса:
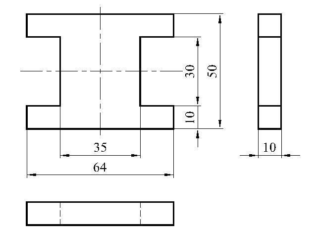
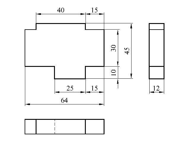
Уточните задание, так как эти детали плоские и толщина их указана на чертеже. Толщина первой детали 10 мм, а второй - 12 мм.
3 вида нада
Ответы
Ответ дал:
0
+++++++++++++++++++++++++++++++
Приложения:
Вас заинтересует
2 года назад
2 года назад
2 года назад
3 года назад
3 года назад
9 лет назад