Ответы
Ответ дал:
0
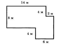
Есть два прямоугольника. У них общая часть. Площадь этой общей части - тоже прямоугольник.
Итого: площадь первого прямоугольника: 14×8 = 112
2-ого: 6×8 = 48
Площадь общего куска: 4×4 = 16. Так как у нас две площади таких в фигуре сейчас, одну нужно убрать.
Площадь фигуры: (112+48) - 16 = 144 (см2).
Кажись, так. Ну, во всяком случае, я так думаю.
Итого: площадь первого прямоугольника: 14×8 = 112
2-ого: 6×8 = 48
Площадь общего куска: 4×4 = 16. Так как у нас две площади таких в фигуре сейчас, одну нужно убрать.
Площадь фигуры: (112+48) - 16 = 144 (см2).
Кажись, так. Ну, во всяком случае, я так думаю.
Ответ дал:
0
Площадь комбинированной фигуры можно находить двумя способами:
1) Разбивая её на части, площади которых можем найти, с последующим сложением площадей полученных частей.
2) Достраиванием фигуры до более целостной(известной) с последующим вычитанием отсутствующих пустот.
Решение:
1) Достроим мысленно нашу фигуру до прямоугольника. Представим себе, что раньше то был целый прямоугольник со сторонами, равными
14 + 2 = 16 (м) и
8 + 4 = 12 (м).
Площадь того прямоугольника была равной
S = ab = 16·12 = 192 (м²)
2) Из прямоугольника вырезали два меньших прямоугольника ( один -сверху, другой - снизу)
Измерения верхней вырезанной части равны 4 м и 2 м, тогда площадь равна
S₁ = 4·2 = 8(м²)
Измерения нижней вырезанной части равны (14 м + 2 м - 6 м) = 10 м и 4 м, площадь того прямоугольника
S₂ = 10·4 = 40 (м²)
3) S фигуры = S - S₁ - S₂ = 192 - 8 - 40 = 144 (м²)
Ответ: 144 м².
Вас заинтересует
2 года назад
2 года назад
3 года назад
3 года назад
9 лет назад
9 лет назад
10 лет назад
10 лет назад