Вариант 19 номер 1 , помогите мне чертить по линию и рисунка столбца. Предмет инженерная графика. Помогите пожалуйста))))
Приложения:

Ответы
Ответ дал:
3
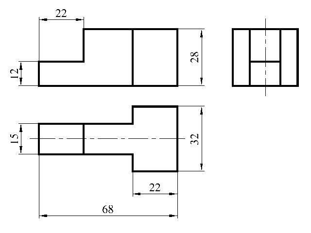
Трудно понять Ваше задание.
Начертила третий вид (вид слева) и изометрию. Больше здесь делать нечего.
Удачи Вам!
Начертила третий вид (вид слева) и изометрию. Больше здесь делать нечего.
Удачи Вам!
Приложения:


Вас заинтересует
1 год назад
1 год назад
2 года назад
2 года назад
3 года назад
3 года назад
8 лет назад