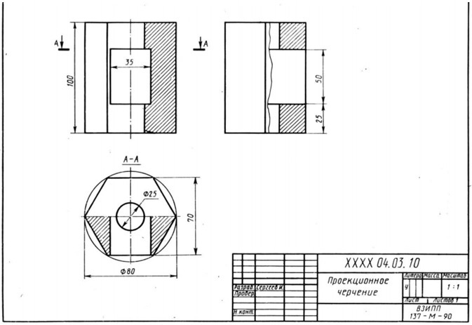
По аксонометрической проекции детали выполнить три
основных ортогональных вида, выполнить полезные разрез (разрезы), размерные линии. Чертеж построить в масштабе 1:1. Пример выполнения графической работы дан на рисунке

Приложения:

Ответы

Ответ дал: solncev1955p8fnco
3
Чертеж с необходимыми разрезами выполнен на рисунке.
Приложения:

solncev1955p8fnco: И четыре отверстия 8 на 10. Секущая проходит через центры этих отверстий, то есть выше двух призматических отверстий, расположенных на горизонтальном разрезе снизу и с верху.
Букса: Отверстие сквозное (1 шт) с размерами 20*38
Букса: Горизонтальные линии убрать, а вертикальные соединить
Букса: И вид слева исправить. Сечение А-А указывать не нужно, т.к. разрез по оси симметрии
solncev1955p8fnco: Понятно, но не до конца понятно был объяснен этот элемент. Вся деталь сохраняет симметрию и не вольно читаешь это наглядное изображение как с двумя таким отверстиями. Сейчас исправлю
sunnybojko: Спасибо
sunnybojko: подскажите, как и где подписать разрезы?
solncev1955p8fnco: А - А, на фронтальной проекции (главный вид и половина разреза); Б - Б - горизонтальный разрез; В - В - половина профильного разреза и вида слева.
sunnybojko: Спасибо
Букса: Стрелки А-А - убрать и обозначение А-А наносить не нужно: обозначение Б-Б проставить над видом сверху; стрелки В-В - убрать и обозначение В-В наносить не нужно
Вас заинтересует