Ответы
Ответ дал:
2
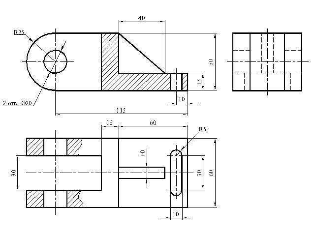
Вид спереди сделан с фронтальным разрезом.
На виде сверху сделан местный разрез (видно, что отверстия диаметром 20 мм - сквозные).
На виде сверху сделан местный разрез (видно, что отверстия диаметром 20 мм - сквозные).
Приложения:


Вас заинтересует
1 год назад
1 год назад
2 года назад
3 года назад
3 года назад
8 лет назад