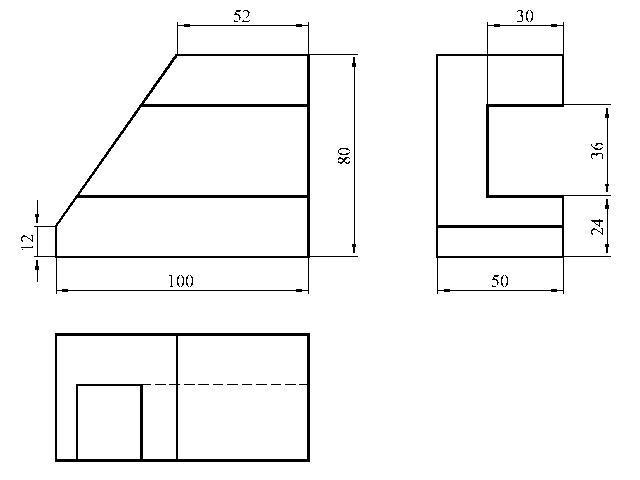
Помогите начертить в 3-ех проекциях , срочно нужно !

Приложения:

Ответы

Ответ дал: Букса
0

+++++++++++++++++++++++++++

Приложения:
Вас заинтересует