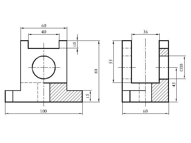
ЧЕРЧЕНИЕ! СИЖУ НА УРОКЕ! СРОЧНО НУЖНА ПОМОЩЬ! ПОЖАЛУЙСТА! НАДО НАЧЕРТИТЬ ВИД СПЕРЕДИ(ПОЛОВИНУ РАЗРЕЗ), ВИД СВЕРХУ, ВИД СЛЕВА(ПОЛОВИНУ РАЗРЕЗ) ПРОШУ.
Приложения:

Ответы
Ответ дал:
2
Вид сверху остается без изменений, остается его только перечертить по размерам.
Приложения:

Вас заинтересует
1 год назад
1 год назад
2 года назад
2 года назад
3 года назад
8 лет назад
8 лет назад