Ответы
Ответ дал:
0
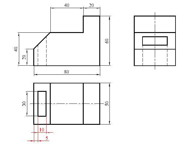
Размеры, по которым я чертила, выделила красным цветом. По Вашим размерам найти нахождение этого отверстия нет возможности.
Приложения:

Вас заинтересует
1 год назад
2 года назад
2 года назад
3 года назад
3 года назад