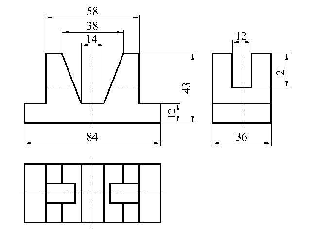
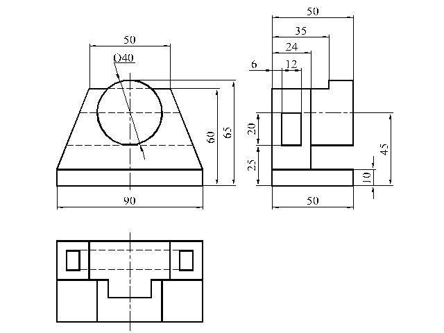
Помогите начертить с аксонометрическим методом вариант 1 рисунок 2 и 3
Заранее спасибо)
Приложения:

Ответы
Ответ дал:
1
Ответ:
Объяснение:
++++++++++++++++++++++++++
Приложения:


Вас заинтересует
1 год назад
1 год назад
1 год назад
3 года назад
8 лет назад