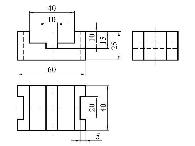
Построить три вида модели. Главный вид взять по стрелке А. Проставить размеры
СРОЧНО РЕБЯТ!!!
Приложения:

Ответы
Ответ дал:
11
Ответ:
Объяснение:
+++++++++++++++++++
Приложения:


Вас заинтересует
1 год назад
1 год назад
1 год назад
1 год назад
3 года назад
3 года назад
8 лет назад