Инженерная графика (начерт. геом).
Помогите! Даю 100 баллов за правильное решение на листе бумаги!
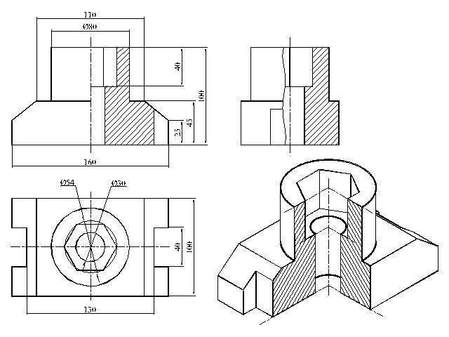
Нужно построить как по примеру (даны лишь два вида, нужно достроить третий и 3D)
• Первая картинка - исходные данные (нужно достроить)
• Вторая картинка - пример!
Приложения:
Ответы
Ответ дал:
2
Ответ:
Объяснение:
++++++++++++++++++++
Приложения:
Artur43:
Большое спасибо! Дай Бог здоровья!
И Вам не хворать. Удачи!!!
Вас заинтересует
2 года назад
2 года назад
3 года назад
3 года назад
9 лет назад