ПОМОГИТЕ, ПОЖАЛУЙСТА! СРОЧНО! ПРОШУ ВАС! БУДУ ОЧЕНЬ БЛАГОДАРНА ЗА ПОМОЩЬ!
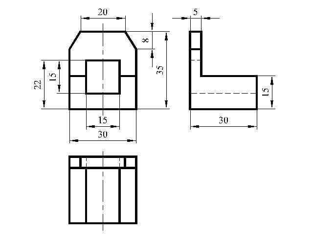
По наглядному изображению выполнить эскиз, нанести размеры, взяв их с наглядного изображения. На картинке размеры наносила не я, а моя подруга, одноклассница.
Приложения:
Ответы
Ответ дал:
1
Ответ:
Объяснение:
Указала размеры, которые должны быть на чертеже. Вы их можете изменить, т.к. я брала размеры с "увеличенной" картинки.
Приложения:
Аноним:
Огромное спасибо
Удачи!
Вас заинтересует
2 года назад
2 года назад
3 года назад
3 года назад