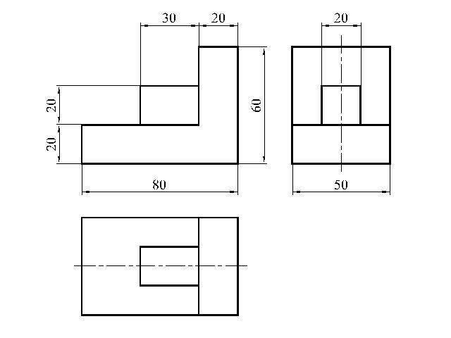
помогите труды нарисовать вид слева и сверху​

Приложения:

Ответы

Ответ дал: Букса
1

Ответ:

Объяснение:

++++++++++++++++++

Приложения:

edosik37: спасибо
Букса: Удачи!
edosik37: в какой программе так сделал?
Букса: AutoCAD
Вас заинтересует