Ответы
Ответ дал:
0
Ответ:
Объяснение:
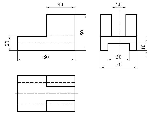
Вариант 10
Первый чертеж - выполнен вид сверху (горизонтальная проекция). Думаю, что в задании допущена ошибка и нужно выполнить профильную проекцию - см. второй чертеж. Дело в том, что размеры на чертежах не указывают по невидимым линиям.
Вариант 6
1. Третий чертеж - указала размеры, по которым я чертила деталь.
2. Четвертый чертеж
Пятый чертеж - построение третьего вида
Приложения:
Вас заинтересует
2 года назад
2 года назад
2 года назад
2 года назад
3 года назад
3 года назад
9 лет назад