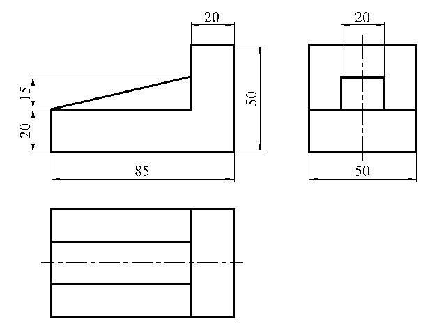
По двум данным видам постройте третий вид детали на чертеже нанесите размеры ​

Приложения:

Ответы

Ответ дал: Букса
6

Ответ:

Объяснение:

++++++++++++++++++++++++++

Приложения:
Вас заинтересует