Ответы
Ответ дал:
1
Ответ:
Объяснение:
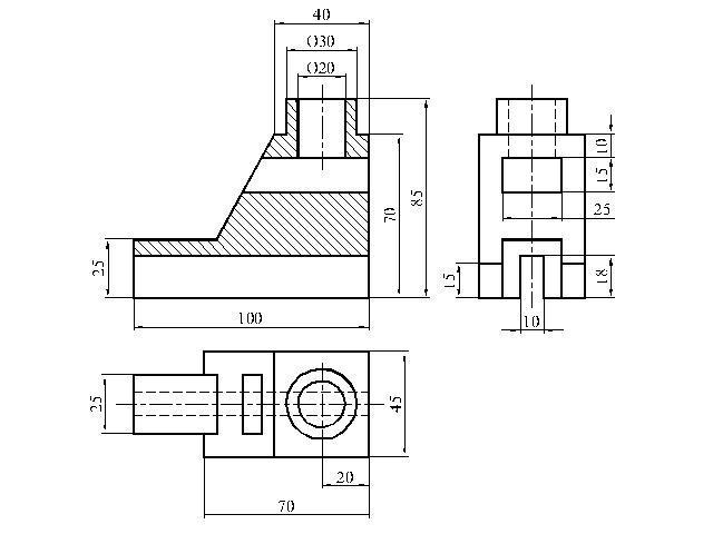
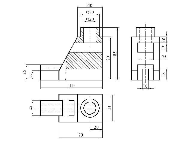
На первом чертеже главный вид заменила на фронтальный разрез, но это немного не верно, т.к. теряется смысл исполнения детали - см. второй чертеж - это более правильное исполнение (выполнен местный фронтальный разрез).
Нет, оба чертежа выполнены правильно, самое главное не смутить преподавателя.
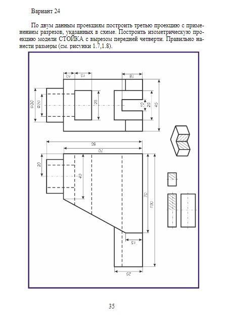
Выполнить разрезы по указанным схемам для этой детали нет возможности, т.к. главный вид не имеет оси симметрии.
Приложения:





Вас заинтересует
1 год назад
1 год назад
1 год назад
3 года назад
3 года назад
8 лет назад