Ответы
Ответ дал:
1
Ответ:
Объяснение:
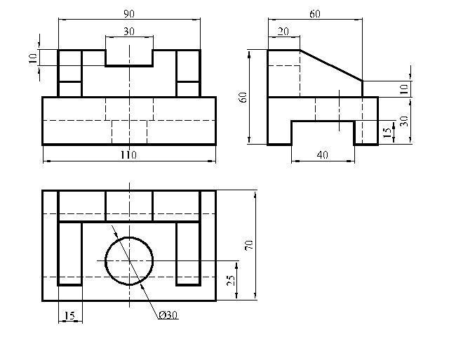
На втором чертеже вид слева заменила профильным разрезом
Приложения:


Вас заинтересует
2 года назад
2 года назад
7 лет назад
9 лет назад