Помогите пожалуйста, очень срочно!!!
за наочним зображенням побудувати проекцію плоского предмета з трех сторон
Приложения:

Ответы
Ответ дал:
2
Ответ:
Объяснение:
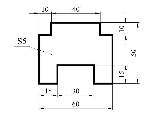
Для плоских деталей не чертят три вида - достаточно одного.
Первый чертеж - правильный. Обозначение S5 говорит о толщине детали.
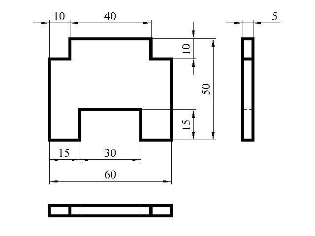
На втором чертеже, на всякий случай, начертила три вида.
Удачи!
Приложения:


271984:
Вы можете мне ещё помочь?
Вас заинтересует
2 года назад
2 года назад
2 года назад
2 года назад
7 лет назад
7 лет назад
9 лет назад