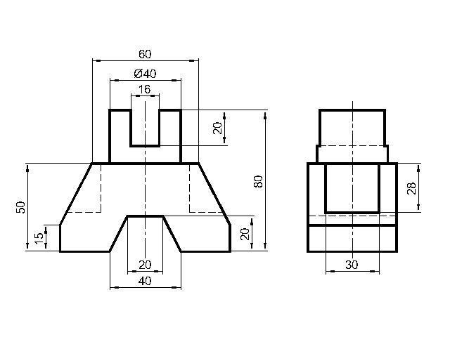
По аксанометрической проекции постройте 3 вида.

Приложения:

Ответы

Ответ дал: Букса
1

Ответ:

Объяснение:

++++++++++++++++++++++++++++++++++++++++

Приложения:
Вас заинтересует