Тема: Деталирование
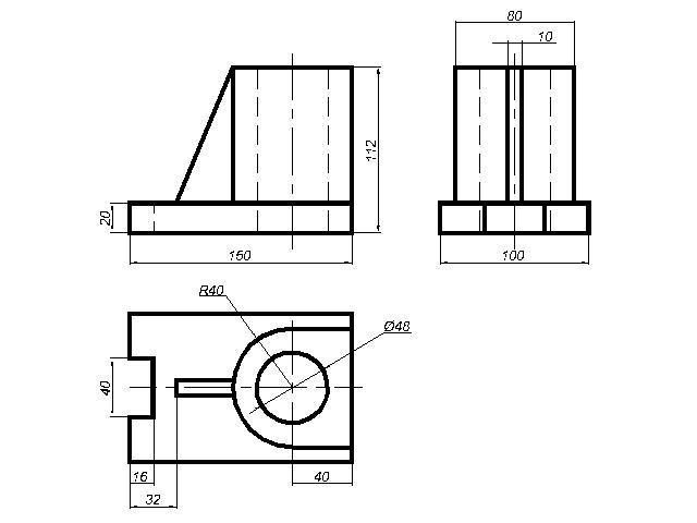
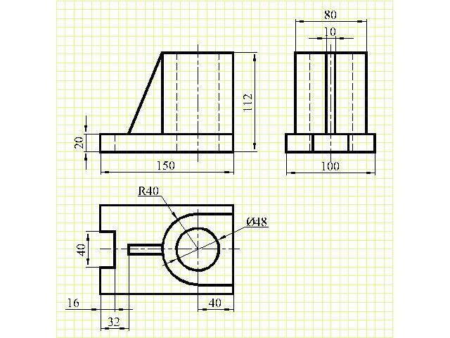
Начертить 3 вида (вид спереди, вид сверху, вид сбоку).
Помогите пожалуйста заранее спасибо
Приложения:
Ответы
Ответ дал:
1
Ответ:
Объяснение:
Так как деталь крупная, Вам придется чертить в масштабе 1:2 (уменьшение в 2 раза). На листочке в клеточку (вторая картинка) чертеж выполнен в масштабе 1:2. При использовании масштаба деталь чертится в 2 раза меньше, а вот указывая размеры ставим натуральную величину.
Приложения:
Вас заинтересует
2 года назад
2 года назад
2 года назад
8 лет назад
8 лет назад
9 лет назад
9 лет назад