Помогите с тех. механикой.
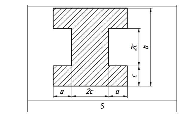
а=2 b=8 c=2
6 вариант
Приложения:


DedStar:
А найти-то что? Момент инерции? Площадь???
Ответы
Ответ дал:
0
Объяснение:
Брала в сантиметрах. Хотя скорее всего это должно было быть в мм
Приложения:

Вас заинтересует
2 года назад
2 года назад
2 года назад
2 года назад
7 лет назад
9 лет назад