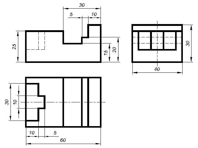
Построить три вида модели, главный вид взять по стрелке А, проставить размеры.
Помогите, пожалуйста, срочно надо
Приложения:
Ответы
Ответ дал:
2
Ответ:
Объяснение:
++++++++++++++++++++
Приложения:
malaakata903:
Помогите пожалуйста с черчением
Вас заинтересует
2 года назад
3 года назад
3 года назад
8 лет назад
9 лет назад