• Предмет: Математика
  • Автор: Аноним
  • Вопрос задан 3 года назад

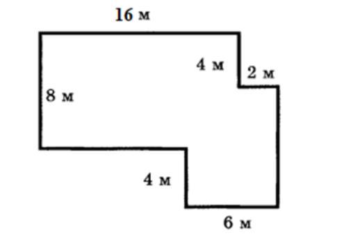
Найдите периметр (в метрах) и площадь фигуры (в метрах квадратных).

ned15.png

Приложения:

Ответы

Ответ дал: darinaportnova61319
6

Ответ:

Пошаговое объяснение:

P=16+4+2+6+4+8=40

S=16*4*2*6*4*8=24` 576

Вас заинтересует