Ответы
Ответ дал:
1
Ответ:
Объяснение:
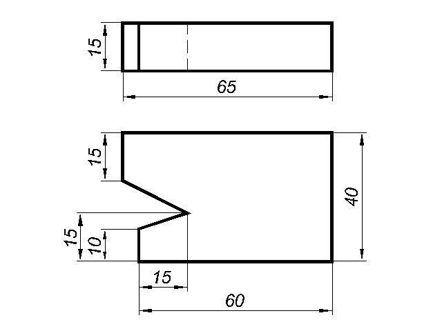
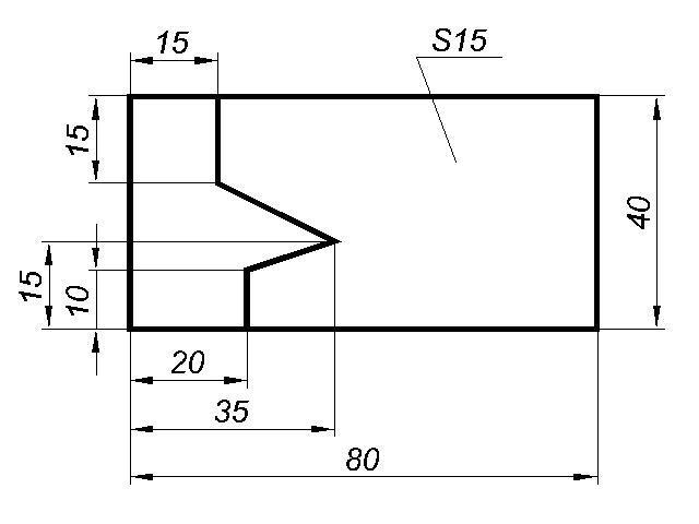
Первые два чертежа выполнены верно, на первом чертеже я указала толщину детали обозначением S15, а на втором начертила вид спереди, на котором и указала толщину (высоту).
Третий чертеж - изометрия детали под номером 2.
Четвертый чертеж (подсказка) выполнен на клетке с размером сторон 5 мм.
Пятый чертеж - показала все размеры, на которые я ориентировалась при построении видов и изометрии.
Приложения:





pmihail220:
спасибо вам огромное,благодорны
Вас заинтересует
2 года назад
2 года назад
2 года назад
8 лет назад
8 лет назад
9 лет назад