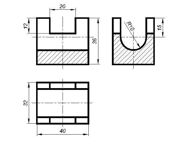
Помогите пожалуйста, нужно построить 3 вида модели вот этой детали? Я так поняла понял,что нужно вид сверху, боковая часть и в разрезе
Приложения:
Ответы
Ответ дал:
1
Ответ:
Объяснение:
Вид спереди заменила фронтальным разрезом, а вид слева - профильным разрезом.
Приложения:
Вас заинтересует
2 года назад
2 года назад
3 года назад
3 года назад
8 лет назад
8 лет назад
9 лет назад
9 лет назад