СРОЧНО! ЧЕРЧЕНИЕ, 100 БАЛЛОВ!
Нужно построить вид по 2ум имеющимся.
Пожалуйста, если не разбираетесь - не помогайте.
Приложения:
Ответы
Ответ дал:
1
Ответ:
Объяснение:
Извините, но Вы не написали, что нужно сделать.
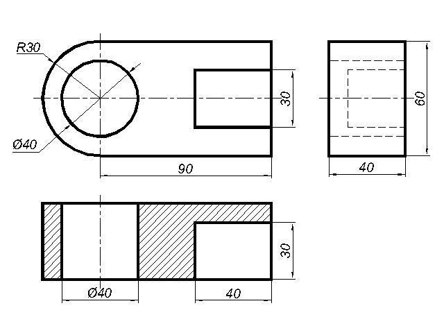
1. Начертила третий вид.
2. Заменила вид сверху горизонтальным разрезом.
3. Начертила изометрию.
Если что-то не так - в ближайшее время могу внести изменения.
Приложения:
Вас заинтересует
2 года назад
2 года назад
3 года назад
8 лет назад
8 лет назад
9 лет назад