аксонометрическая проекция
Помогитее пожалуйста срочно надо!!!!
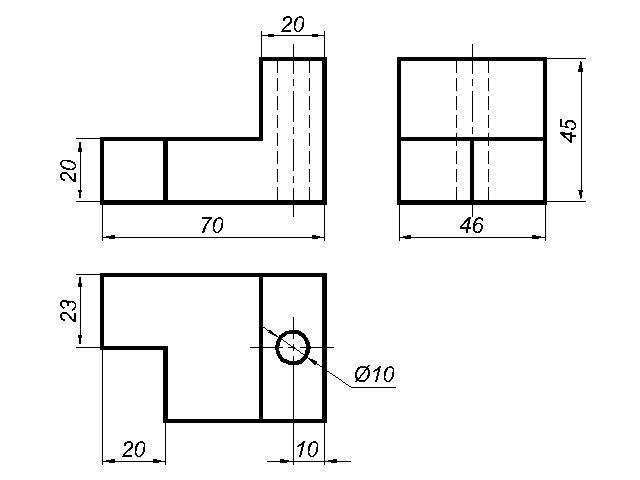
1. по двум проекциям построить третью проекцию.
2. построить аксонометрический чертеж детали.
Приложения:

Ответы
Ответ дал:
1
Ответ:
Объяснение:
++++++++++++++++++++++++++++
Приложения:



Вас заинтересует
2 года назад
2 года назад
2 года назад
8 лет назад
8 лет назад
9 лет назад