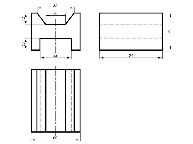
черчение. нужно найти два вида детали
помогите :(
(40 баллов)

Приложения:

Ответы

Ответ дал: Букса
1

Ответ:

Объяснение:

++++++++++++++++++++

Приложения:
Вас заинтересует