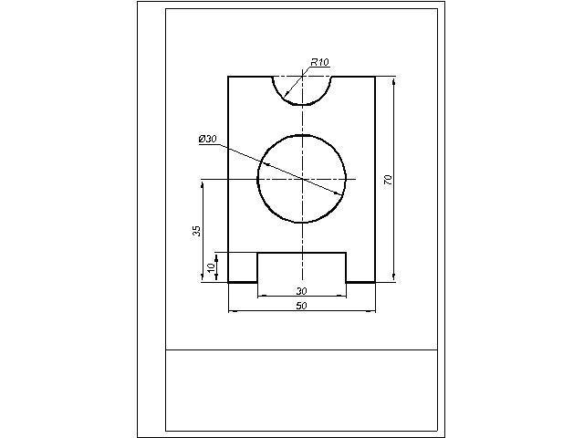
(Помогите пж дам 50 баллов!)спользуя правила 30 50 симметрии начертить деталь в масштабе 2:1. Расположить деталь строго по центру листа. Нанести размерные линии. III
Приложения:

Ответы
Ответ дал:
0
Ответ:
Объяснение:
При черчении в любом масштабе - размеры указывают номинальной величины.
Масштаб 2:1 - увеличение в 2 раза.
Приложения:



Вас заинтересует
2 года назад
2 года назад
3 года назад
3 года назад
8 лет назад
9 лет назад
9 лет назад