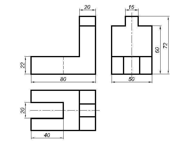
помогите пожалуйста надо нарисовать вид сбоку, вид сверху и вид спереди​

Приложения:

Ответы

Ответ дал: Букса
1

Ответ:

Объяснение:

++++++++++++++++++++++++

Приложения:
Вас заинтересует