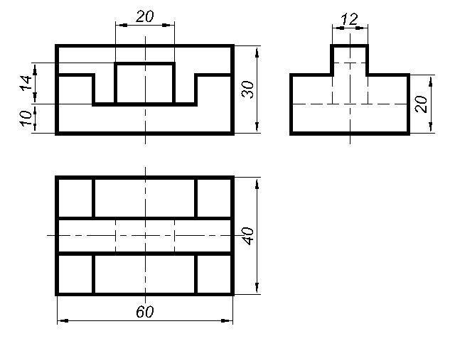
ПОЖАЛУЙСТА НАЧЕРТИТЕ В 3 ВИДАХ Я ВАС ПРОШУ​ пожалуйста очень нужно правда

Приложения:

Ответы

Ответ дал: Букса
1

Ответ:

Объяснение:

Т.к. в задании не указана ширина верхнего выступа, взяла = 12 мм.

Приложения:
Вас заинтересует