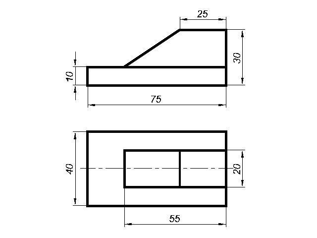
Виконати виконати фронтальну і горизонтальну проєкції деталі у проєкційному зв'язку за розмірами. Помогите пожалуйста
Приложения:

Ответы
Ответ дал:
0
Ответ:
Объяснение:
++++++++++++++++++++++++
Приложения:


Вас заинтересует
2 года назад
2 года назад
2 года назад
2 года назад
8 лет назад
8 лет назад
9 лет назад