ОТДАМ ВСЕ БАЛЫ
БУКСА ПОМОГИ!
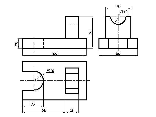
Постройте чертеж в необходимом количестве видов опора сталь три вида: 1)вид слева, 2)вид сверху, 3)главный вид формат 1:1
ОПОРА СТАЛЬ
Приложения:

Букса:
Выполню это задание, но только за 10 баллов.
Ответы
Ответ дал:
2
Не дождалась нового вопроса за меньшее количество баллов ... Увы!
Приложения:


Вас заинтересует
2 года назад
2 года назад
2 года назад
8 лет назад
8 лет назад
9 лет назад