Помогите пожалуйста. Практическая работа черчение, срочно
1. Как называется изображенная на чертеже деталь?
2. Из какого материала она должна быть изготовлена?
3. В каком масштабе выполнен чертеж?
4. Где и кем выполнен чертеж?
5. Какие виды детали даны на чертеже?
6. Сочетанием каких геометрических тел образована общая форма детали?
7. Какова форма отдельных частей детали?
8. Чему равны габаритные размеры детали?
9. Каковы размеры отдельных частей детали?
Приложения:

Ответы
Ответ дал:
3
Ответ:
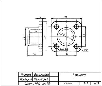
1. Деталь называется «Крышка».
2. Изготовлена она должна быть из стали.
3. Чертеж выполнен в масштабе 1:1, т.е. в натуральную величину.
4. Чертеж выполнен Василенко, проверен Чекмаревым.
5. Чертеж содержит два вида — главный и вид слева.
6. Общая форма детали образована поверхностями вращения — цилиндрами. Наружная поверхность 0 42 и внутренняя 0 34. Основание детали — параллелепипед.
7. В основании детали имеются четыре цилиндрических отверстия для крепления к другой детали. Углы основания скруглены.
8. Габаритные размеры детали 34x70x70 мм.
9. Глубина внутренней цилиндрической полости 30 мм, радиус скругления углов основания Я12 мм, диаметры отверстий в основании 10 мм, толщина основания 8 мм. Расстояние между центрами отверстий 46 мм.
Вас заинтересует
2 года назад
2 года назад
2 года назад
8 лет назад
9 лет назад
9 лет назад