• Предмет: Математика
  • Автор: titovich76
  • Вопрос задан 7 лет назад

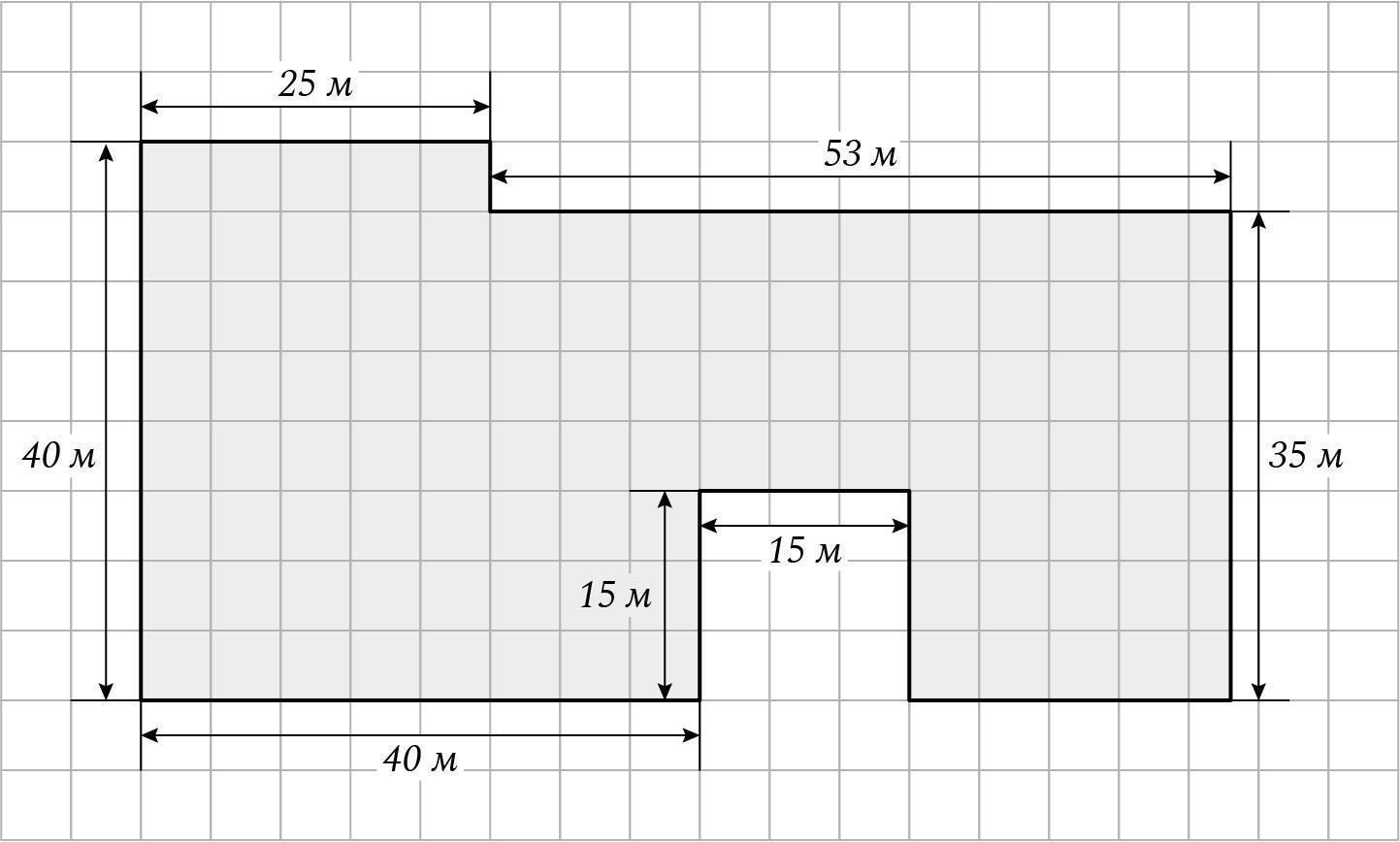
На рисунке показан план садового участка. Забор какой длины понадобится, чтобы огородить участок? Какова площадь участка?

Приложения:

Ответы

Ответ дал: umostica23
1

Ответ: P=266 м, S=2943 м².

Пошаговое объяснение: Р=40+25+5+53+35+23+15+15+15+40=266(м)-длина забора

S=40*(25+53)-15*15-5*53=2943(м²)-площадь

Вас заинтересует