помогите с решением задачи
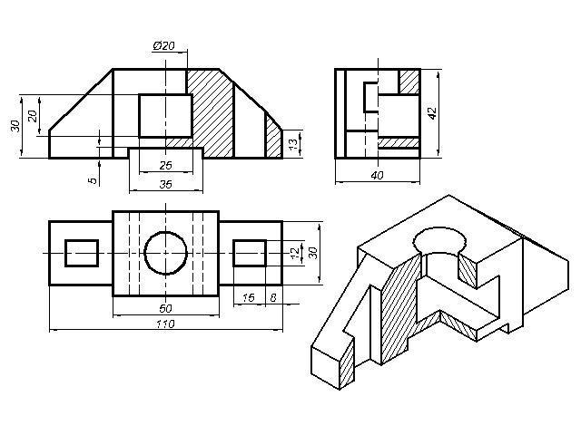
1. нужно изобразить саму деталь сбоку, сверху, фронтально.
2. и сделать разрез детали в аксонометрии
Приложения:
Ответы
Ответ дал:
2
+++++++++++++++++++++++++++++
Приложения:
yanameste:
Здравствуйте, в комментариях дополнил https://znanija.com/task/48898782
Вас заинтересует
2 года назад
3 года назад
3 года назад
8 лет назад
8 лет назад
10 лет назад
10 лет назад