• Предмет: Геометрия
  • Автор: persic080907
  • Вопрос задан 7 лет назад

из прямоугольного листа жести требуется изготовить коробку, вырезая во всех его углах равные квадраты и загибая края жести. найдите длину стороны такого квадрата если размеры листа жести 60х70 см, а объем коробки 20дм³
жесть


siestarjoki: два ответа (дм): 1 ; (11-√41)/4
persic080907: с решением, пожалуйста

Ответы

Ответ дал: siestarjoki
1

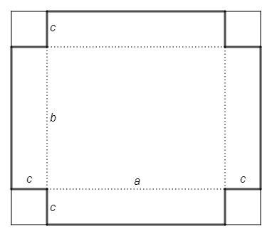
В дециметрах (10 см =1 дм)

Измерения коробки: a, b, c

V =abc =20

Сторона вырезаемого квадрата: с

a=7-2c

b=6-2c

(7-2c)(6-2c)c =20

2с^3 -13c^2 +21c -10 =0

Сумма коэффициентов 0 => c=1

Делим на (с-1)

(c-1)(2c^2 -11c +10) =0

Решаем 2c^2 -11c +10 =0

при этом 2c<6

второй ответ c=(11-√41)/4

Ответ:  1  ;  (11-√41)/4  (дм)

Приложения:
Вас заинтересует