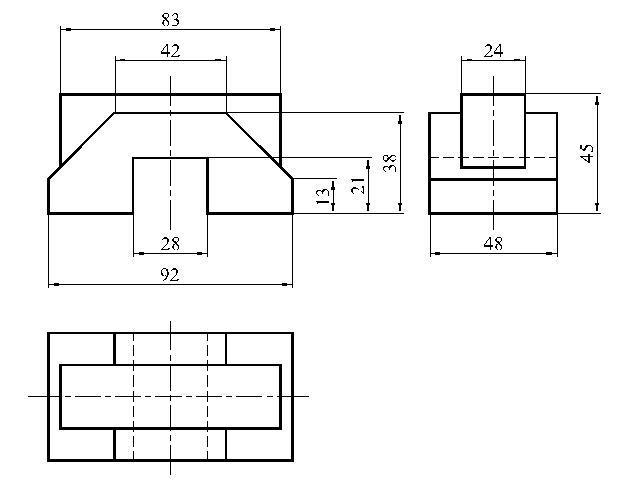
Помогите по черчению!!!!
нарисуйте вид сверху и слева
Изображен вид спереди

Приложения:

Ответы

Ответ дал: Букса
2

++++++++++++++++++++++++++++++++++++

Приложения:
Вас заинтересует