Задание по чернению
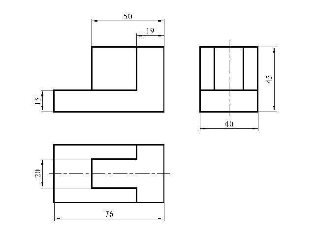
По аксонометрическим проекциям моделей построить три проекции

Приложения:

Ответы

Ответ дал: Букса
1

Ответ:

Объяснение:

+++++++++++++++++++++

Приложения:

kyrgyz98: Здраствуйте пожалуйста помогите мне ​ по математике https://znanija.com/task/35916414?utm_source=android&utm_medium=share&utm_campaign=question
Аноним: пожалуйста помогите мне! очень срочно прошу.
Вас заинтересует