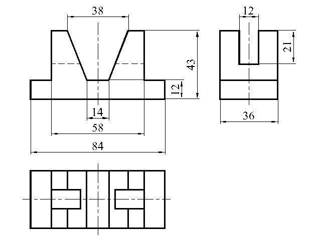
Ответы
Ответ:
Объяснение:
1. Берем нижнее основание, прямоугольный параллелепипед (желтый цвет):
Длина = 8,4 см
Ширина = 3,6 см
Высота = 1,2 см
Объем основания = 8,4×3,6×1,2 = 36,3 (см³)
2. Берем призму, основание которой - трапеция (фиолетовый цвет) - считаем ее сплошной.
Верхнее основание трапеции = 1 см
Нижнее основание трапеции = 2,2 см
Высота трапеции = 3,1 см
Высота призмы = 3,6 см
Площадь трапеции = (1+2,2):2*3,1 = 4,96 (см²)
Объем призмы = 4,96×3,6 = 17,856 (см³)
У нас две призмы, следовательно, объем = 17,856×2 = 35,7 (см³)
3. Выемка (зеленый цвет) - призма, основание которой - трапеция.
Верхнее основание трапеции = 1 см
Нижнее основание трапеции = 1,8 см (померила на чертеже)
Высота трапеции = 2,1 см
Высота призмы = 1,2 см
Площадь трапеции = (1+1,8):2*2,1 = 2,94 (см²)
Объем призмы = 2,94×1,2 = 3,5 (см³)
У нас две призмы, следовательно, объем = 3,5×2 = 7 (см³)
Теперь считаем объем всей детали:
V = 36,3 + 35,7 - 7 = 65 (см³)
Если деталь выполнена из стали, то плотность ρ = 7,85 гр/см³
Вес детали = 65 × 7,85 = 510,25 грамм
