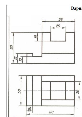
По двум заданным видам,постройте третий

Приложения:

Ответы

Ответ дал: Букса
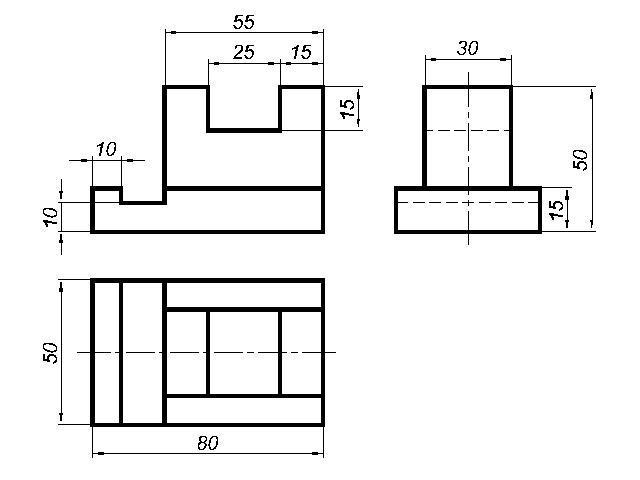
1

Ответ:

Объяснение:

++++++++++++++++++++++++++

Приложения:
Вас заинтересует