• Предмет: Математика
  • Автор: utegalicofia
  • Вопрос задан 3 года назад

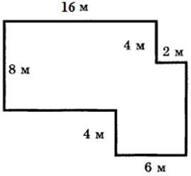
Найдите периметр (в метрах) и площадь фигуры (в метрах квадратных).

Приложения:

utegalicofia: СРОЧНО

Ответы

Ответ дал: nevgadaesh007
2

Ответ:

S= 18 432 m²

P= 40 m

Пошаговое объяснение в файле

Приложения:

romaivancovpro: Найдите периметр (в метрах) и площадь фигуры (в метрах квадратных).
romaivancovpro: s=19408m/2. p=63m правильный ответ
nevgadaesh007: Ничего подобного
nevgadaesh007: Иди лучше почитай " Площадь и периметр неправильных фигур", чем здесь умничать, неуч
Вас заинтересует